|
СЕРИЯ 100Е
|
При горизонтальной установке завеса навешивается отверстиями в задней стенке корпуса на предварительно
вмонтированный в стену крепеж
|
КЭВ-3П113Е, КЭВ-4П121Е, КЭВ-5П121Е
|
|
|
|
КЭВ-2П112Е, КЭВ-2,5П112Е
|
|
СЕРИЯ 200Е, 200W, 200A
|
В задней стенке корпуса завесы имеются две пары отверстий для навешивания при горизонтальной или
вертикальной установке. Завесу можно навешивать на крепеж, вмонтированный непосредственно в стену.
|
|
|
КЭВ-П201Е, КЭВ-П221Е, КЭВ-П202Е, КЭВ-П222Е, КЭВ-П211А, КЭВ-П212А
|
 |
 |
|
|
|
Модель |
Размеры, мм |
|
A |
B |
L |
КЭВ-П221Е, КЭВ-П201Е, КЭВ-П211А |
630 |
670 |
1000 |
КЭВ-П222Е, КЭВ-П202Е, КЭВ-П212А |
1130 |
1170 |
1500 |
|
|
КЭВ-20П211W, КЭВ-29П212W
|
 |
 |
|
|
Модель |
Размеры, мм |
|
A |
B |
L |
КЭВ-20П211W |
630 |
670 |
1000 |
КЭВ-29П212W |
1130 |
1170 |
1500 |
|
|
По заказу завесы могут быть укомплектованы наборами элементов крепления
|
|
|
В варианте 2 показана
вертикальная установка завес с помощью вешалки 2 и планки 3. Вешалка предварительно закреплена
на стене, а планки - на завесе. Завеса навешивается отверстиями на вешалку, после чего через отверстия
на выступающих концах планок фиксируется на стене.
|
|
|
|
Модель |
Размеры, мм |
|
A |
B |
L |
КЭВ-П201Е, КЭВ-П221Е,
КЭВ-П211А, КЭВ-П211W |
750 |
630 |
1000 |
КЭВ-П202Е, КЭВ-П222Е,
КЭВ-П212А, КЭВ-П212W |
1280 |
1130 |
1500 |
|
|
В варианте 3 показана горизонтальная
установка завес к стене с помощью вешалки 2. Вешалка предварительно закрепляется на стене. Завеса
навешивается на вешалку и дистанционируется от стены посредством болтов 3.
|
|
|
|
Модель |
Размеры, мм |
|
A |
B |
L |
КЭВ-П201Е, КЭВ-П221Е,
КЭВ-П211А, КЭВ-П211W |
750 |
630 |
1000 |
КЭВ-П202Е, КЭВ-П222Е,
КЭВ-П212А, КЭВ-П212W |
1280 |
1130 |
1500 |
|
|
|
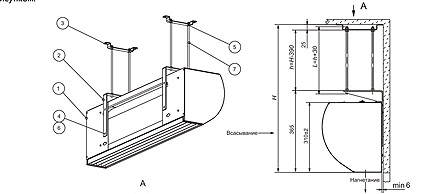
В варианте 4 показано подвешивание
завесы к потолку. Предварительно необходимо закрепить на потолке две скобы 3, а на завесе - кронштейны 2.
Длина L штанг резббовых 7 выбираются в соответствии с рисунком.
|
|
|
|
|
Модель |
Размеры, мм |
|
A |
L |
КЭВ-П201Е, КЭВ-П221Е,
КЭВ-П211А, КЭВ-П211W |
630 |
1000 |
КЭВ-П202Е, КЭВ-П222Е,
КЭВ-П212А, КЭВ-П212W |
1130 |
1500 |
|
|
|
СЕРИЯ 300Е, 300W, 300A
|
В задней стенке корпуса завесы имеются две пары отверстий для навешивания при горизонтальной или
вертикальной установке. Завесу можно навешивать на крепеж, вмонтированный непосредственно в стену.
|
|
КЭВ-П303Е, КЭВ-П323Е, КЭВ-П304Е, КЭВ-П301Е, КЭВ-П302Е, КЭВ-П311A, КЭВ-П313A, КЭВ-П314A
|
 |
 |
|
|
Модель |
Размеры, мм |
|
A |
B |
L |
C |
D |
КЭВ-П303Е, КЭВ-П323Е, КЭВ-П313A |
660 |
615 |
1017 |
178,5 |
201 |
КЭВ-П304Е, КЭВ-П314A |
1605 |
1560 |
1962 |
178,5 |
201 |
КЭВ-П301Е, КЭВ-П311A |
1190 |
1130 |
1500 |
155 |
185 |
КЭВ-П302Е |
1022 |
977 |
1380 |
178,5 |
201 |
|
|
КЭВ-28П313W, КЭВ-60П314W, КЭВ-42П311W
|
 |
 |
|
|
Модель |
Размеры, мм |
|
A |
B |
L |
C |
D |
КЭВ-28П313W |
660 |
615 |
1017 |
178,5 |
201 |
КЭВ-60П314W |
1605 |
1560 |
1962 |
178,5 |
201 |
КЭВ-42П311W |
1190 |
1130 |
1500 |
155 |
185 |
|
По заказу завесы могут быть укомплектованы наборами элементов крепления
|
|
|
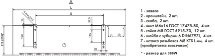
В варианте 2 показана вертикальная установка
завес с помощью вешалки 2 и планки 3. Вешалка предварительно закрепляется на стене, а планки -
на завесе. Завеса навешивается отверстиями на вешалку, после чего через отверстия на выступающих концах
планок фиксируется на стене.
|
|
|
|
Модель |
Размеры, мм |
 n |
|
A |
B |
L |
КЭВ-П303Е, КЭВ-П323Е,
КЭВ-П313А, КЭВ-28П313W |
750 |
615 |
1017 |
5 |
КЭВ-П304Е, КЭВ-П314А,
КЭВ-60П314W |
1695 |
1560 |
1962 |
7 |
КЭВ-П301Е, КЭВ-П311А,
КЭВ-42П311W |
1280 |
1130 |
1500 |
5 |
|
|
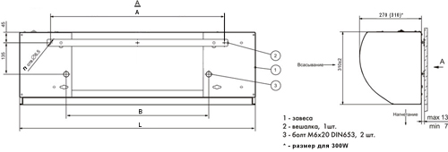
В варианте 3 показана горизонтальная установка
завес на стене с помощью вешалки 2. Вешалка предварительно закрепляется на стене. Завеса навешивается на вешалку и
дистанционируется от стены посредством болтов 3.
|
|
|
|
Модель |
Размеры, мм |
 n |
|
A |
B |
L |
КЭВ-П303Е, КЭВ-П323Е,
КЭВ-П313А, КЭВ-28П313W |
750 |
615 |
1017 |
3 |
КЭВ-П304Е, КЭВ-П314А,
КЭВ-60П314W |
1695 |
1560 |
1962 |
4 |
КЭВ-П301Е, КЭВ-П311А,
КЭВ-42П311W |
1280 |
1130 |
1500 |
3 |
|
|
В варианте 4 показано горизонтальное
подвешивание завес к потолку. Предварительно необходимо закрепить на потолке две скобы 3,
а на завесе - кронштейны 2. Длина L штанг резьбовых 7 выбирается в соответствии с рисунком.
|
|
|
|
Модель |
Размеры, мм |
|
A |
L |
КЭВ-П303Е, КЭВ-П323Е,
КЭВ-П313А, КЭВ-28П313W |
615 |
1017 |
КЭВ-П304Е, КЭВ-П314А,
КЭВ-60П314W |
1560 |
1962 |
КЭВ-П301Е, КЭВ-П311А,
КЭВ-42П311W |
1130 |
1500 |
|
|
СЕРИЯ 300Е и 300W. Потолочная завеса
|
Завеса устанавливается в подвесной потолок с помощью
резьбовых штанг.
|
|
КЭВ-П305Е, КЭВ-П315Е, КЭВ-П306Е
|
|
 |
|
Модель |
Размеры, мм |
|
A |
L |
КЭВ-П305Е, КЭВ-П315Е |
625 |
1025 |
КЭВ-П306Е |
1570 |
1970 |
|
|
КЭВ-28П315W, КЭВ-60П316W
|
 |
|
Модель |
Размеры, мм |
|
A |
L |
КЭВ-28П315W |
625 |
1025 |
КЭВ-60П316W |
1570 |
1970 |
|
|
|
СЕРИЯ 400E, 400W, 400A.
|
При горизонтальной установке завеса навешивается на предварительно вмонтированный
в стену крепеж или кронштейны соответствующими отверстиями на заднеей стенке. Для крепления завес к потолку,
вертикальной или иной установки на задней стенке завесы имеются резьбовые отверстия.
|
|
КЭВ-П404E, КЭВ-П403E, КЭВ-П402E, КЭВ-П414A, КЭВ-П413A, КЭВ-П412A
|
 |
|
Модель |
Размеры, мм |
|
A |
B |
L |
КЭВ-П403E
КЭВ-П413A |
830 |
760 |
1030 |
КЭВ-П404E
КЭВ-П414A |
1300 |
1150 |
1500 |
КЭВ-П402E
КЭВ-П412A |
1820 |
1650 |
2020 |
|
|
|
КЭВ-44П413W, КЭВ-70П414W, КЭВ-98П412W
|
 |
|
Модель |
Размеры, мм |
|
A |
B |
L |
КЭВ-44П413W |
830 |
760 |
1030 |
КЭВ-70П414W |
1300 |
1150 |
1500 |
КЭВ-98П412W |
1820 |
1650 |
2020 |
|
|
|
 |
* Размеры для завесы КЭВ-200П512W
|
|
|
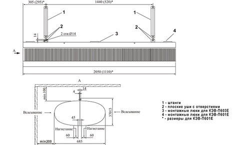
СЕРИЯ 600Е.
|
Завесы КЭВ-П601Е и КЭВ-П603Е крепятся к потолку с помощью пустотелых цилиндрических штанг, входящих
в комплект поставки. Штанги имеют по краям плоские "уши" с отверстиями. Одним концом штанги закрепляются
за предварительно вмонтированные в потолок кронштейны, другим концом - за выступающие в верхней части
завесы ответные "уши".
|
|
|
|
Завеса П604Е крепится к полу через отверстия
установочной плиты за анкерные болты, предварительно вмонтированные в пол.
|
 |
|
|
КЭВ-П605Е.
|
 |
1 - штанги
2 - плоские уши с отверстиями
3 - монтажный люк
|
|
|
СЕРИЯ 700W, 700A
|
Завесы крепятся к потолку или к несущей конструкции при помощи кронштейнов, входящих в комплект поставки. Допускается другой способ установки завес через отверстия М8 задней крышки корпуса.
|
|
КЭВ-170П701W
|
 |
|
|
КЭВ-230П702W
|
 |
|
|
|